Byty k dlouhodobému nájmu

Nedílnou součástí aktivit společnosti Baltaci je dlouhodobý pronájem bytových i nebytových prostor ve Zlíně a v Napajedlích. V klidné části centra města Zlína, na ulici Zarámí se nachází bytový dům č. p. 4422, který nabízí moderní byty ve čtyřech nově zrekonstruovaných podlažích a 1 apartmánový byt Exclusive. Další bytové prostory k dlouhodobému nájmu o dispozici 2kk se nachází na ulici Podvesná IV. Ve Zlíně jsou rovněž k nájmu byty na ulici Lešetín II o dispozicíh 2+1 a 3+1. V Napajedlích nabízíme nájem bytů v historické budově Starého zámku na ulici Masarykovo náměstí 75.

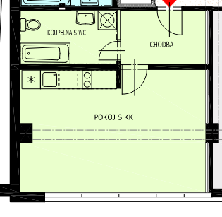
Byt 1+kk

Zlín, Podvesná IV 3946

Nabízíme k pronájmu standardní byt s dispozicí 1+kk o výměře 28,00 m2.

Byt je vybaven:

  • kuchyňskou linkou se sklokeramickou deskou a lednicí
  • spací částí s postelí a komodami
  • koupelnou se sprchovým koutem, umyvadlem, toaletou,

Dispozice:      1+kk
Výměra:
         28,00 m2
Cena:             12.000 Kč/měsíc (součástí ceny je záloha 3.500 Kč na energie)
Kauce:           8.500 Kč
K nájmu:       ihned

V případě zájmu prosím kontaktujte:

Jitka Juříčková
Tel. č.:        +420 605 597 974
E-mail:       nemovitosti@baltaci.cz